1 bedroom house in Vale da Pinta - Cartaxo

700€ / Month

  • 2
  • 1
  • 1
  • Usable: 63m2
  • Floor: 91m2
  • C.E.: E
  • Year: 2006
  • Ref: 65611-MCGO62601

Location

Santarém, Cartaxo, Cartaxo e Vale da Pinta, Centro (Vale da Pinta)

Videos

VR Tour

Description

House in Vale da Pinta, four kilometers from the center of Cartaxo.
Composed of living room and kitchen (equipped with stove, extractor fan and fridge); bedroom with closet and full bathroom.
There is an annex on the plot, which can be rented out together with the house, depending on your needs.
Located in a quiet rural area, surrounded by nature.
Five minutes from the Primary and Secondary School, an area with cafés, restaurants and a sports club.

Get to know Vale da Pinta through our Video!

Take a Virtual Tour here too!

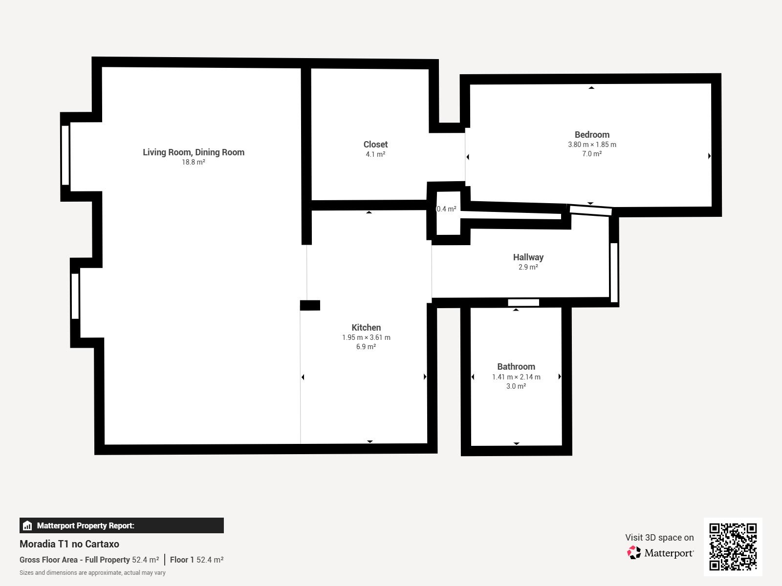
Divisions

Blueprints

Floor name: House Floor 0

Division Area Note
Room 18.80m2
Kitchen 6.90m2
Bedroom 7.00m2
Closet 4.10m2
WC 3.00m2
Hall 2.90m2